株式会社 長谷工シニアウェルデザイン

空室のご紹介part② 気になる設備、なんの設備?編

ブログ: ブランシエール鶴舞公園

空室のご紹介part② 気になる設備、なんの設備?編

暮らし

皆さんこんにちは!!
あっという間にお正月から1ヶ月が経ち2月になりました。
最低気温が氷点下を下回る日も多く厳しい寒さが続いています。
風邪など召されませぬようご自愛してお過ごしください。

さて今回は空室のご紹介part②です。
前回紹介した301号室の特徴は、
・広いリビング
・WCL収納付き
・小窓による風通しの良さ
でした!
(前回の記事はこちら→「空室のご紹介part① お気に入り空間編」

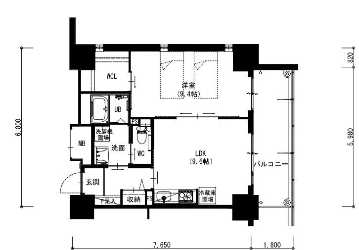
スクリーンショット 2026-02-02 120727
301の間取り

今回は見学にいらした皆様から特に多くいただく質問である
居室の設備についてご紹介いたします。

 

301号室はEVに最も近い居室です。
外出の際や共用部の利用にとても便利になっています。
屋内の避難階段が近いのもポイント高いですね♪

tsuruma_kyoshitsushokaiEVmae
廊下(避難経路)

 

フロアの色にマッチしたこの扉、実は秘密があります。

扉を閉めると煙を防ぐために、
下からシャッターが降りる
のです!!

もしものときの安心安全設計ですね♪

扉①
木目調で統一感のある扉

 

消防設備
これは何でしょう?

お次はこの丸い設備。
スピーカーが近くにあるので関連設備と思われる方も多くいらっしゃいます。
皆さんなんだと思いますか?


正解は煙探知機です。
火災の発生時は煙を探知していち早く非常ベルの発報に繋げます。
こちらももしもの時の安心の設備です。

皆様いかがでしたでしょうか。
2回に渡って空室のご紹介をさせていただきました。
これを読まれた方が少しでもブランシエール鶴舞公園での生活をイメージできますように。
見学も随時受け付けております☺